住んでいる人を照らす「井戸でつながる陽だまりの戸建賃貸」
埼玉県さいたま市北区
POINT
POINT 01
中庭の井戸で災害が起きたときも安心。生活用水を確保して生活を維持します。
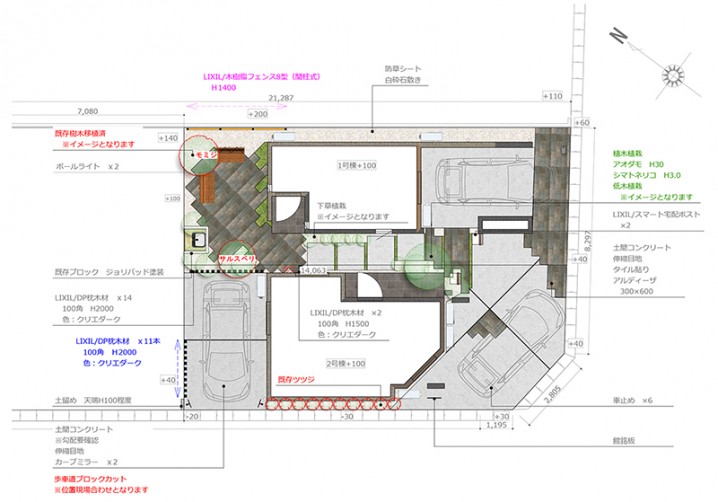
今回の計画では庭の部分を相続対策として戸建賃貸の建築を行いました。2階建て案やローコストでできる計画もありましたが、ご所有されている土地の中央に井戸があり、その井戸を中心とした中庭を作った上で戸建賃貸を計画し、唯一無二の賃貸計画を行い将来にわたって入居不安や家賃の下落のしにくい、戸建賃貸を計画したいと提案しました。井戸があることで災害時の生活用水の確保と共に、その周りを囲んで入居者とオーナー様をつなぐコミュニティの役割を担ってもらうことができる仕掛けができました。
POINT 02
コミュニティスペースで公園や空き地など遊ぶ場所が少なくなった子ども達にとっての秘密の遊び場。
回の計画地はデザイン性と安全面、何よりも入居していただくご家族への配慮としてオーナー様に提供していただいた井戸を活かすため、中庭を計画する事が一番最初に決まりました。中庭を生かすため配棟計画を行い、2階建てから3階建てへプラン変更をして出来上がったのが「秘密の遊び場」でした。公園や空き地など家の近くでも安心して過ごすことのできないご時世で、少しでも安心して過ごせる場所になってもらえると思って計画しました。
POINT 03
小さいお子様がいるご家族も安心。小道の先にある玄関。
今回の敷地は前面が旧中山道という幹線道路に面しており、駅からも近く一見生活しやすそうに見えますが、交通量も多く危険が多い事案への配慮として幹線道路に面しない玄関を作る事で、小道のデザインが出来上がり中庭につなぐ事で秘密の遊び場へとつながる小道が完成しました。今回のプランでは子供が飛び出して事故にあうことも回避でき、安心して住んでいただける環境を計画する事ができました。
CONTACT















